Servicios
Desarrollamos su proyecto de manera confiable y cumpliendo con los plazos establecidos.
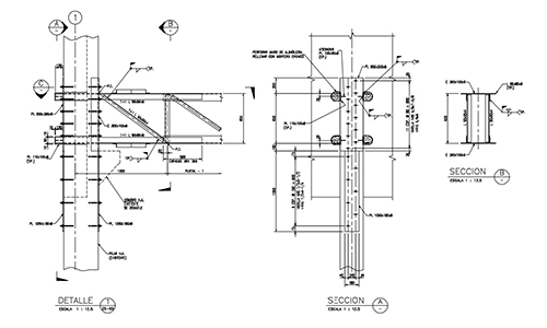
El cálculo estructural es la actividad principal de SCHAAD INGENIEROS, y abarca lo siguiente:

La evaluación estructural se requiere para investigar la capacidad de estructuras existentes ante solicitaciones nuevas o cuando existe incertidumbre en su estructura.

La Inspección Técnica Estructural está orientada a velar por el correcto cumplimiento del proyecto estructural durante la ejecución de la obra.

Este servicio de modelación tridimensional de las estructuras, incorpora cada uno de los elementos, perfiles, detalles, y otros componentes a un modelo con tecnología BIM.

El reforzamiento de estructuras existentes se requiere para mejorar las condiciones de resistencia y rigidez ante las cargas de diseño. Esta intervención está muy ligada a las reparaciones en caso de estructuras antiguas con daños por algún evento (ejemplo: terremotos) o deterioro por el uso prolongado de la estructura.

Somos una empresa consultora y nuestra misión es ser reconocida como una empresa especialista en análisis, diseño, inspección y evaluación estructural.
Cerro el Plomo 5931, oficina 1701
Las Condes – Santiago
